Joya Mediterránea: Finca Son Salom con Licencia y Proyecto de Lujo en Santanyi
  • 5.800.000€

Description

Presentamos ‘Son Salom’ una propiedad excepcional de 59.235 m² en una de las zonas más demandadas del sureste de Mallorca. Lo que hace única a esta finca no es solo su tamaño, sino contar con un Proyecto de Lujo aprobado y la Licencia para construir.

Ubicación Estratégica
Situada en el triángulo de oro del sureste:
Privacidad absoluta: En el tranquilo entorno rural de Ses Salines.
Conectividad: A solo 5 minutos del alma de Santanyí (mercados, arte y gastronomía).

Mar: A un paso de las aguas cristalinas de Es Trenc, Playas de Santanyi, Colonia de Sant Jordi y el pintoresco puerto de Cala Figuera.

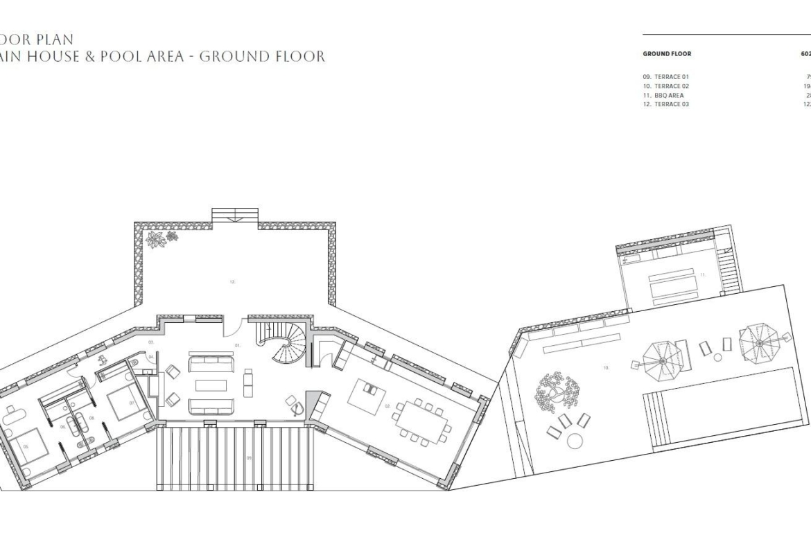
El Proyecto: Arquitectura, Lujo y Funcionalidad
La licencia permite la construcción de una imponente vivienda de 482 m² distribuidos con elegancia y sentido práctico:

Planta Noble (Zona Social y Descanso):

Espacio Open-Concept (120 m²): Salón, comedor y cocina de diseño integrados en un área bañada por la luz natural gracias a sus grandes ventanales.
Suites de Invitados: 2 amplios dormitorios con baño privado (en suite).
Extras: Elegante distribuidor, aseo de cortesía, despensa y zona de servicio.

Planta Superior (El Refugio Maestro):

Master Suite de 57 m²: Un santuario privado con vestidor, baño de lujo y acceso directo a una terraza privada de 39 m² con vistas panorámicas al paisaje mallorquín.

Sótano y Garaje:
Sótano de 120 m² diseñado para la vida moderna: bodega, lavandería, sala técnica y trastero.
Garaje cerrado con capacidad para 2 coches, motos y equipamiento deportivo.

Exteriores Diseñados para el “Lifestyle” Mallorquín
El proyecto exterior es un oasis de convivencia y relax:

Piscina de diseño (35 m²): Rodeada de amplias zonas de solárium.

Un paraíso de terrazas: Casi 600 m² de terrazas, porches y pérgolas que crean microambientes de sol y sombra para cenas al aire libre y barbacoas.

No deje escapar esta oportunidad de oro en Santanyí.
📞 Contacte hoy mismo para recibir los planos detallados y concertar una visita a la parcela.

  • Dirección: , Santanyí 07690
  • Ciudad: Santanyí
  • Código postal: 07690
  • Área: Santanyí

Detalles

Actualizado en abril 29, 2026 a 8:08 am
  • ID propiedad DRAC-CR1510DB
  • Precio 5.800.000€
  • Tamaño de la propiedad 482.00 m2
  • Superficie terrestre 59235 m2
  • Habitaciones 3
  • Baños 4
  • Garajes 2
  • Estado de la propiedad Comprar, Obra Nueva

Características

Comparar listados

Comparar
Resumen de privacidad

Esta web utiliza cookies para que podamos ofrecerte la mejor experiencia de usuario posible. La información de las cookies se almacena en tu navegador y realiza funciones tales como reconocerte cuando vuelves a nuestra web o ayudar a nuestro equipo a comprender qué secciones de la web encuentras más interesantes y útiles.