Description
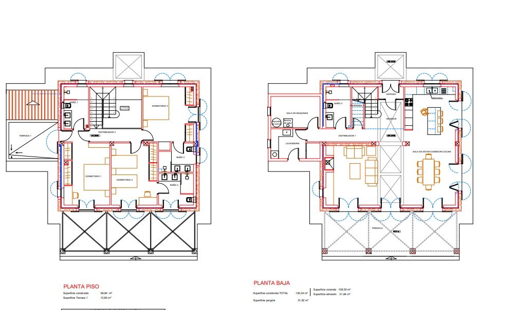
Este bonito y tranquilo terreno rústico, se encuentra en el sureste de la isla de Mallorca entre el parque natural de Mondragó con sus idílicas playas y el histórico pueblo de Santanyí.Dicho terreno cuenta con un proyecto para una casa de 206 m2 más 43 m2 de porches y terrazas, y una piscina de 35 m2 más sala de máquinas y un aljibe.La vivienda dispone de 3 habitaciones dobles, 4 baños, sala de estar-comedor-cocina, despensa, lavandería y sala de máquinas.
Dirección
Abrir en Google Maps-
Ciudad: Santanyí
-
Área: Área de Santanyi
Detalles
Actualizado en abril 17, 2026 a 4:10 am-
ID propiedad DRAC-RU1176GE
-
Precio 535.000€
-
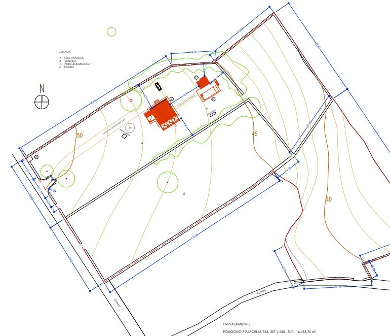
Tamaño de la propiedad 15567 m2
-
Superficie terrestre 15567 m2
-
Tipo Terrenos
-
Estado de la propiedad Comprar, Ninguno
