Terreno con Proyecto cerca de Felanitx
- 148.000€
- 168.000€
- 148.000€
- 168.000€
Descripción
Parcela ubicada entre Felanitx (a 4 km) y Manacor (a 11 km), con vistas despejadas al Santuario de Sant Salvador.
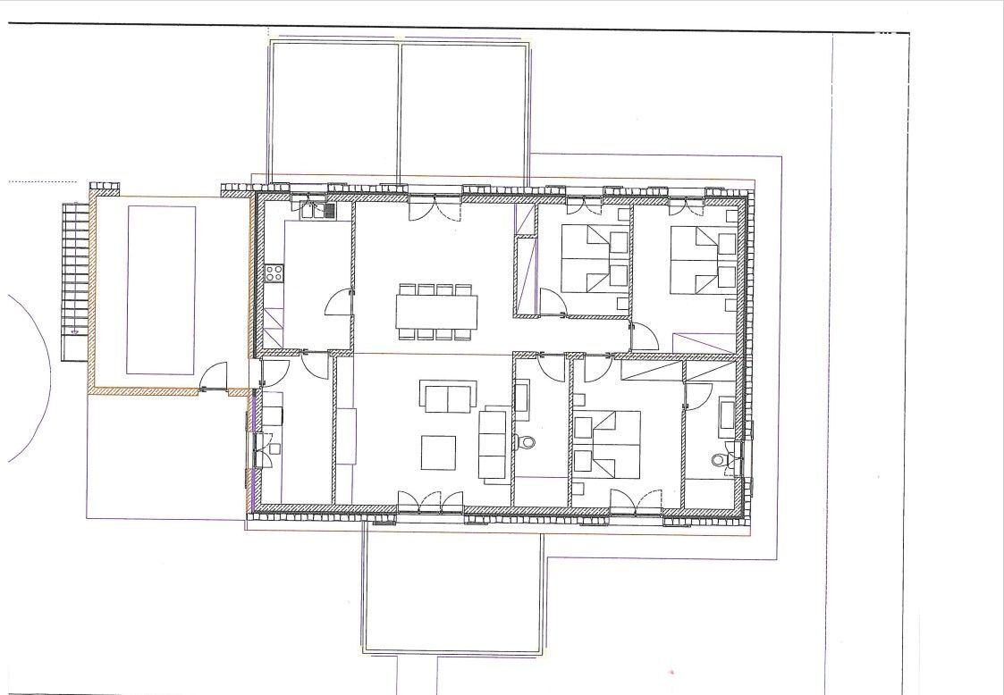
Cuenta con un proyecto arquitectónico pagado y en vigor, que contempla la construcción de una vivienda unifamiliar de una sola planta con una superficie habitable de 150 m², un garaje de 30 m² y una piscina de 35 m². Además, es posible añadir una segunda planta si se desea ampliar la superficie construida.
El proyecto no dispone actualmente de licencia de construcción. No se ha iniciado todavía su tramitación administrativa, lo que permite al nuevo propietario gestionarla directamente en función de sus necesidades.
La parcela permite una superficie construible total de hasta 267 m². Asimismo, la ocupación máxima autorizada es de 357 m², incluyendo vivienda, piscina, porches y otras construcciones auxiliares.
Dispone de autorización oficial para la perforación y explotación de un pozo, con un volumen máximo anual autorizado de 250 m³. La documentación ya ha sido aprobada por la Dirección General de Recursos Hídricos de Baleares, por lo que el pozo está listo para ejecutarse.
El terreno está clasificado como suelo rústico común y es apto para uso residencial unifamiliar (viviendas tipo chalet).
dirección
Abrir en Google Maps-
ciudad: Felanitx
-
área: Felanitx centro
detalles
Actualizado en febrero 9, 2026 a 2:12 am-
ID propiedad DRAC-RU1183JO
-
precio 148.000€
-
Tamaño de la propiedad 17830 m2
-
Superficie terrestre 17830 m2
-
Type Terrenos
-
Estado de la propiedad Comprar, En proyecto
