• 354 m2
  • Superficie del área
  • 354 m2
  • Superficie terrestre
Parcela con proyecto de vivienda unifamiliar aprobada en Cap des Moro cerca de S’ Amarador
  • 445.000€
  • 495.000€

Description

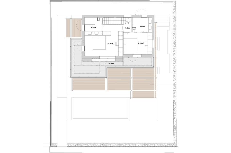
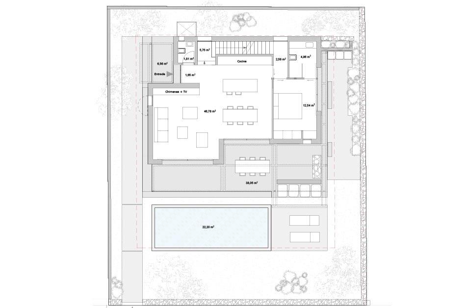
¡Gran Oportunidad ! Parcela de aprox. 350 m² en una ubicación privilegiada de Cap des Moro, con licencia de construcción en vigor y proyecto iniciado. El proyecto aprobado contempla una vivienda unifamiliar de aprox. 150 m² con 3 dormitorios y 3 baños, además de una piscina de 22 m². El sótano el suelo de losa ya están ejecutados y terminados, permitiendo un rápido avance de la obra.

La parcela se sitúa en una calle tranquila, a poca distancia del mar y a menos de 10 minutos a pie de la magnífica playa S’Amarador. El acceso al pintoresco pueblo de Santanyí es rápido, a 10 minutos en coche. Cuenta con servicios de electricidad y agua de red disponibles. La base perfecta para terminar su futuro chalet a medida.

  • Ciudad: Santanyí
  • Área: Cala Figuera

Detalles

Actualizado en marzo 9, 2026 a 2:37 am
  • ID propiedad DRAC-UR2051DB
  • Precio 445.000€
  • Tamaño de la propiedad 354 m2
  • Superficie terrestre 354 m2
  • Estado de la propiedad Comprar, Ninguno

Comparar listados

Comparar