1
  • Type
  • Developable land
  • 354 m2
  • Area size
  • 354 m2
  • Land area
Plot with approved single-family home project in Cap des Moro near S’Amarador
  • 445.000€
  • 495.000€

Description

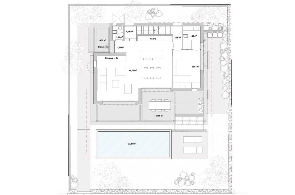
Great Opportunity! Plot of approximately 350 m² in a prime location in Cap des Moro, with a valid building permit and project underway. The approved project includes a single-family home of approximately 150 m² with 3 bedrooms and 3 bathrooms, as well as a 22 m² pool. The basement and slab floor have already been completed, allowing for rapid progress.~~The plot is located on a quiet street, within walking distance of the sea and less than a 10-minute walk from the magnificent S’Amarador beach. Access to the picturesque town of Santanyí is quick, a 10-minute drive away. Electricity and mains water are available. The perfect base for completing your future custom villa.~

  • city: Santanyí
  • area: Cala Figuera

details

Updated on December 12, 2025 at 2:09 am
  • Property ID DRAC-UR2051DB
  • price 445.000€
  • Grandària de propietat 354 m2
  • Land area 354 m2
  • Type Developable land
  • Property status Buy, In project

Compare listings

Compare