Plot with License and Started Structure in Portocolom
- 440.000€
- 480.000€
- 440.000€
- 480.000€
Description
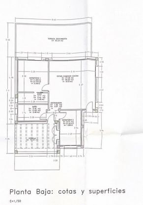
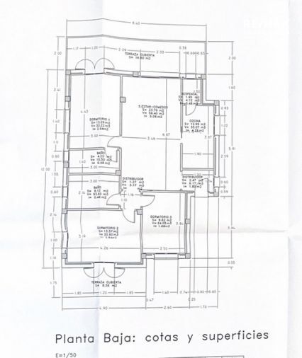
Located in the charming and picturesque village of Portocolom, Mallorca, this plot offers an excellent opportunity for those seeking an investment in one of the most tranquil and privileged areas of the island. Just steps from the sea and close to a wide range of amenities such as restaurants, supermarkets, and shops, this land combines convenience, serenity, and Mediterranean lifestyle.The plot comes with a license for a single-family house distributed across a basement, ground floor, first floor, and pool. The original project has been modified to create two independent apartments: one on the ground floor and another on the first floor, with a garage and additional space in the basement, as well as a shared pool enhancing the contemporary design of the property.The structure and foundations are already completed, providing a solid base to finalize the construction. To proceed and customize this project, the building license must be renewed.This property offers endless possibilities, whether for personal use or as an investment, in an idyllic setting that combines the tranquility of a coastal village with proximity to services and leisure options. Don’t miss this chance to build your dream home or business in Portocolom!~
address
Open in Google Maps-
city: Portocolom
-
area: Portocolom
details
Updated on December 15, 2025 at 2:23 am-
Property ID DRAC-UR2044GE
-
price 440.000€
-
Grandària de propietat 390 m2
-
Land area 390 m2
-
Type Plots
-
Property status Buy, In project



