1
  • Typ
  • Bebaubares Land
  • 354 m2
  • Flächengröße
  • 354 m2
  • Landfläche
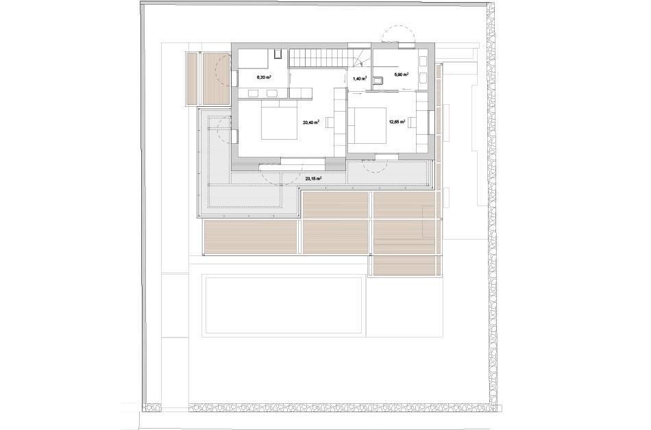
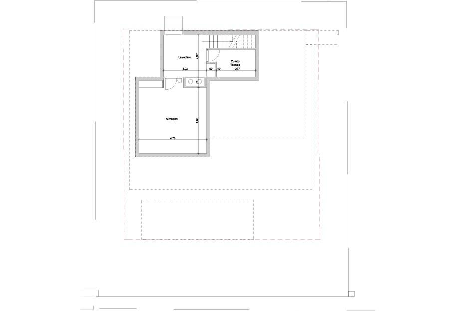
Grundstück mit genehmigtem Einfamilienhausprojekt in Cap des Moro bei S’Amarador
  • 445.000€
  • 495.000€

Beschreibung

Großartige Gelegenheit! Grundstück mit ca. 350 m² in bester Lage in Cap des Moro, mit gültiger Baugenehmigung und laufendem Projekt. Das genehmigte Projekt umfasst ein ca. 150 m² großes Einfamilienhaus mit 3 Schlafzimmern und 3 Bädern sowie einem 22 m² großen Pool. Keller und Plattenboden sind bereits fertiggestellt, sodass ein zügiger Baubeginn möglich ist.~~Das Grundstück liegt in einer ruhigen Straße, nur wenige Gehminuten vom Meer und weniger als 10 Gehminuten vom herrlichen Strand von S’Amarador entfernt. Das malerische Städtchen Santanyí ist mit dem Auto in nur 10 Minuten erreichbar. Strom und Wasser sind vorhanden. Der perfekte Ausgangspunkt für Ihre zukünftige individuelle Villa.~

  • Stadt: Santanyí
  • Bereich: Cala Figuera

Details

Aktualisiert am Dezember 15, 2025 beim 2:24 a.m.
  • Immobilien-ID DRAC-UR2051DB
  • Preis 445.000€
  • Größe der Immobilie 354 m2
  • Landfläche 354 m2
  • Typ Bebaubares Land
  • Eigentumsstatus Im Projekt, Kaufen

Compare listings

Vergleichen