73
  • Typ
  • Bebaubares Land
  • 14400 m2
  • Flächengröße
  • 14400 m2
  • Landfläche
Rustikales Anwesen in Campos mit Genehmigtem Projekt
  • 490.000€

Beschreibung

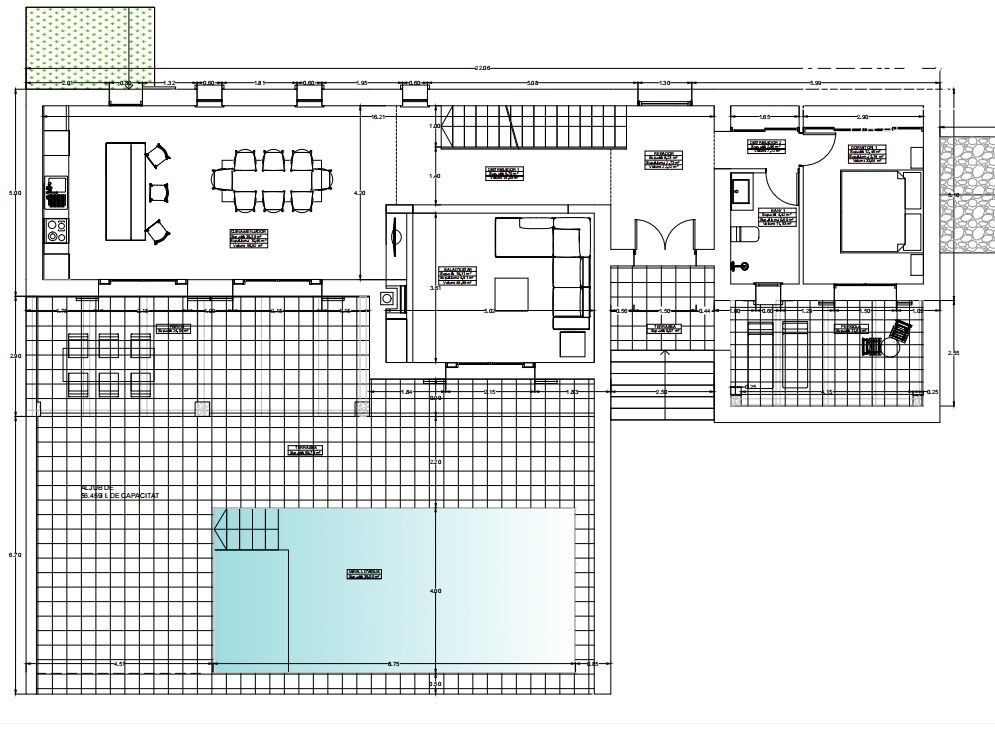
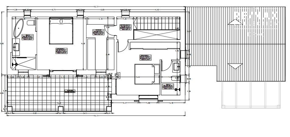
Im Herzen des ländlichen Mallorcas bietet dieses 14.400 m² große Anwesen die Möglichkeit, ein elegantes Haus von 275 m² mit einem genehmigten Projekt zu bauen, das Tradition und Moderne vereint. Das Haus ist so konzipiert, dass es seine Umgebung optimal nutzt und wird über drei geräumige Schlafzimmer verfügen, jedes mit eigenem Bad, verteilt auf zwei Etagen. Das Erdgeschoss wird ein helles Wohn-Esszimmer beherbergen, das mit einer modernen offenen Küche verbunden ist, alles mit direktem Zugang zu einer großen Terrasse, die einen 35 m² großen Pool umgibt. Dieser Außenbereich mit einer gemütlichen Pergola ist perfekt, um das mediterrane Klima und die offenen Ausblicke zu genießen.Die Raumaufteilung ist darauf ausgelegt, Komfort und Funktionalität zu bieten, mit einem Schlafzimmer im Erdgeschoss, ideal für Gäste, und den beiden anderen Schlafzimmern im ersten Stock, wo das Hauptschlafzimmer über einen privaten Balkon mit Panoramablick verfügt.Verbindung zu Campos und seinen DienstleistungenDie Lage des Anwesens ermöglicht es, die Ruhe des Landlebens zu genießen, ohne auf die Nähe zu wesentlichen Dienstleistungen zu verzichten. Nur wenige Minuten mit dem Fahrrad oder zu Fuß entfernt bietet das Zentrum von Campos alles, was man für das tägliche Leben benötigt: Supermärkte, Apotheken, Geschäfte und eine Vielzahl von Restaurants und Cafés, in denen man die lokale Küche genießen kann. Darüber hinaus verfügt Campos über moderne Sport- und Freizeiteinrichtungen, darunter Tennisplätze, Paddle-Plätze und ein städtisches Fitnessstudio, was es zu einem idealen Ort für diejenigen macht, die einen aktiven Lebensstil pflegen möchten.Natürliche Umgebung und Nahegelegene GebieteNeben den städtischen Dienstleistungen liegt das Anwesen in einer wunderschönen natürlichen Umgebung. Einer der Hauptattraktionen dieser Immobilie ist die Nähe zum berühmten Strand Es Trenc, ein wahres Naturparadies mit türkisfarbenem Wasser und weißen Sandstränden, ideal für diejenigen, die den Strand und die Natur in ihrer reinsten Form genießen möchten. Darüber hinaus ist das Anwesen nur 30 Autominuten von Palma, der Hauptstadt der Insel, entfernt, was einen einfachen Zugang zum Flughafen und zu allem bietet, was die pulsierende Stadt zu bieten hat, von Kultur und Gastronomie bis hin zu Shopping und Unterhaltung.Dieses rustikale Anwesen stellt eine einzigartige Gelegenheit dar, in einer privilegierten Umgebung zu leben, in der Moderne und mediterraner Lebensstil zusammenkommen, um ein außergewöhnliches Zuhause auf Mallorca zu bieten.~

  • Stadt: Campos
  • Bereich: Campos

Details

Aktualisiert am Dezember 15, 2025 beim 2:22 a.m.
  • Immobilien-ID DRAC-RU1196GE
  • Preis 490.000€
  • Größe der Immobilie 14400 m2
  • Landfläche 14400 m2
  • Typ Bebaubares Land
  • Eigentumsstatus Im Projekt, Kaufen

Compare listings

Vergleichen